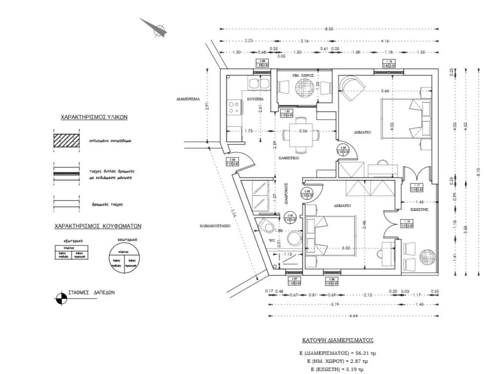
Το μεγαλόπνοο σχέδιό μας είναι η ανακαίνιση διαμερίσματος του Συλλόγου στην Αθήνα, προκειμένου να διαμένουν κατά την διάρκεια των θεραπειών τους οι Ευρυτάνες καρκινοπαθείς που έχουν οικονομική ανάγκη. Το διαμέρισμα έχει παραχωρηθεί από το Γενικό Νοσοκομείο Καρπενησίου στον σύλλογό μας και εμείς έχουμε επιφορτιστεί την ανακαίνισή του. Οι λόγοι για τους οποίους θέλουμε να αναμορφώσουμε το συγκεκριμένο διαμέρισμα είναι πρακτικοί (λόγω παλαιότητάς του), αλλά γνωρίζουμε επίσης, πως ο ασθενής μπορεί να «ξεφύγει» -έστω και για λίγο- από τα προβλήματα που αντιμετωπίζει, αν βρίσκεται σε ένα ευχάριστο περιβάλλον.
Βέβαια, το κόστος της ανακαίνισης δεν μπορεί να καλυφθεί με τα έσοδα του Συλλόγου και για αυτό τον λόγο, σας χρειαζόμαστε όλους συμπαραστάτες σε αυτήν την προσπάθεια. Όποιος θέλει, μπορεί να κάνει τη δωρεά του στον κάτωθι λογαριασμό:
Λογαριασμός: 37000294084
IBAN λογαριασμού: GR2101103700000037000294084
Κωδικός SWIFT Τράπεζας (BIC): ETHNGRAA
Δικαιούχος Λογαριασμού: ΣΥΛΛΟΓΟΣ ΑΓΩΝΑΣ ΖΩΗΣ Ν ΕΥΡΥΤΑΝΙΑΣ





